iDEAL Equipment
iDEAL PSB-SDD26ASY-AK -1-Phase Ideal Paint Booth (26L x 14W x 9.3H - ID) Side Down Draft Booth (1-Ph)
- SKU:
- PSB-SDD26ASY-AK - 1-Phase
- UPC:
- PSB-SDD26ASY-AK - 1-Phase
- Availability:
- FACTORY SHIPPED
- Minimum Purchase:
- 1 unit
- Shipping:
- $2,000.00 (Fixed Shipping Cost)
Description

iDeal PSB-SDD26ASY-AK Paint Booth w/Side Down Draft -1-Phase


OPTIONAL KITS AVAILABLE
- PSBSDD-31DUCTKIT-9 31" Diameter 8’ Exhaust Duct Kit w/Rain Head
- PSB-SSDD-48EPK-AK 48" SDD & SEMI Extension Panel Kit
-

-
RAMMSTEIN 10HP PAINT BOOTH HEATER RS-1001 (1-PH) STAND & FILTER INCLUDED
iDEAL's Side Down Draft Paint Spray Booth is precision constructed with Heavy Duty 18" gauge galvanized steel panels, powder coated both inside and out. Designed in accordance with NFPA codes and OSHA national requirements, our Side Down Draft Booth offers superior air flow performance granting you a clean work environment for a great finish.
High quality, heavy duty precision construction, coupled with premium quality components and features, all working together to give you The iDEAL difference!
- No Hidden Costs!
- Reduced Lead Times - In Stock Ready to Ship!
- One Stop Shop for a Complete Paint Spray Booth!
There is no general contractor needed, however once the booth is installed a licensed electrician will need to be there to do all final hook ups. In addition, you or licensed electrician will need to get with the city to make sure codes are met since every city/state is different.
There are no states that we are aware of that could cause the iDeal booth to not be legal due to air quality standards.
Available in all states. However, if in NY we recommend checking to make sure it complies to code first due to NY's has VERY strict codes!
Specifications
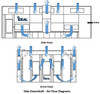
- Inside Dimensions: 26'L x 14'W x 9'-3"H
- Outside Dimensions: 26'-4"L x 17'-8"W x 9'-5"H
- Fans: (2x) 24" Tube-Axial Non-Spark, NEMA Rated
- Motor: 2HP-1PH-230/460VAC-60HZ
- DFM: 14,000 @ .5 Static Pressure
- Lighting: 10 each T-8 Light Fixtures, Four Bulbs
- Light Bulbs Included
Filters, lights, fans included.
Deluxe control panel included
Duct work not included - Side Down draft paint booths require two 25" duct kits (one on each side)
Optional Plenum kit only needed if using optional gas heater.
Item in Stock - No Mfg Wait Time - Ready to Ship
Features
- Side Down Draft Airflow
- Commercial Grade, Hip Panel Design for Optimal Lighting Coverage
- Powder Coated Finish (Inside & Outside)
- Heavy Duty Precision Punched 18-gauge Panel Construction
- 5/16" Bolt & Nut installation
- Tri-fold and Personnel Doors with Viewing Window
- (2x) Dayton 24" Tube Axial Fan 2HP 1PH, Spark Resistant, Aluminum Blades, Made in USA
- Rammstein Air Deluxe Control Panel, UL Listed
- LDPI Industrial Lighting, 10 each High Quality UL Listed Light Fixtures
- Light Bulbs Included
- Air Filtration Co. Inc., High Quality Intake & Exhaust Filters
-



